Plot 4
NG22 0QJ
£425,000
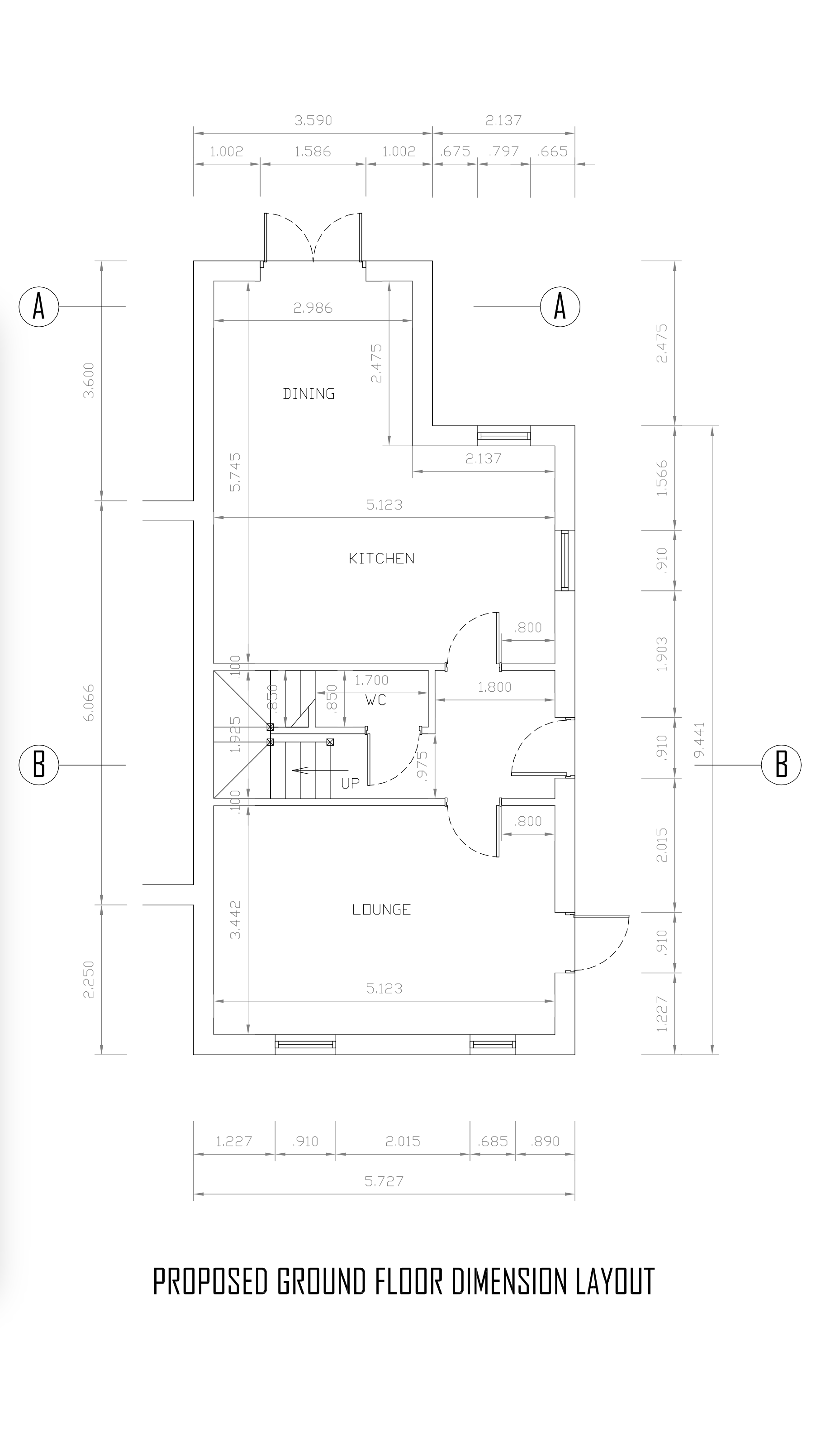
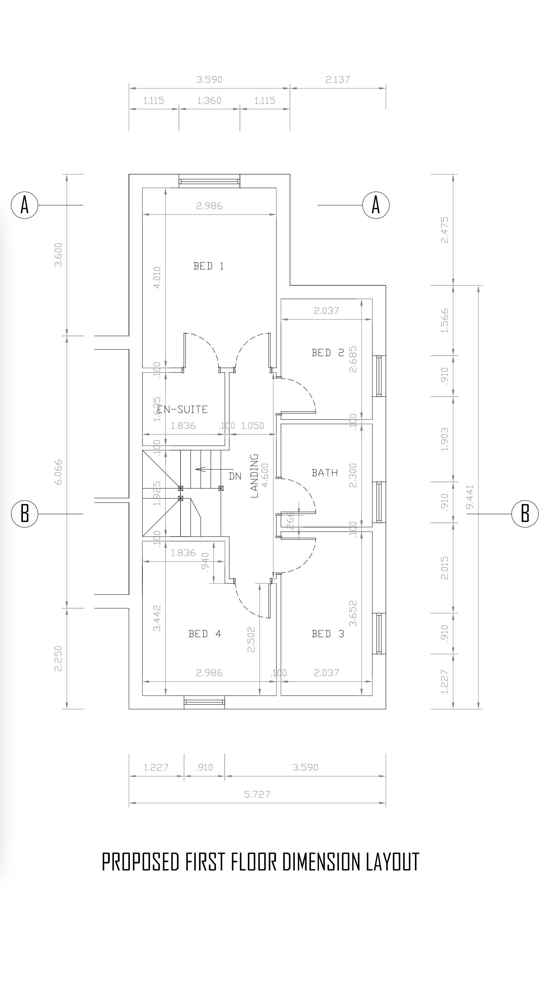
120 sqm
This spacious property boasts 4 comfortable bedrooms, a delightful kitchen diner with a spacious rear garden, a generously sized lounge, a convenient downstairs WC, and a family bathroom upstairs. To top it all off, this plot also includes a carport.
Key Features:
- Double garage
- WC
- Large kitchen
- Spacious lounge
- 4 Bedrooms
- Ensuite and bathroom
- 10 Year New Build Warranty
The Local Area
Sundown Adventureland
East Markham is not far from the popular childrens attraction, Sundown Adventureland. It offers a range of rides, activity parks, and shows that are specifically designed for kids under 10 years old. The park provides a family-friendly environment where children can have a fun-filled day.
Church Spa
Located inside a Methodist church, the building has been repurposed and now serves as a unique establishment offering both a luxury day spa and a bed and breakfast experience.
The Fox
The Fox’s reputation for good food and excellent service has contributed to its popularity within the local community and beyond. The combination of tasty cuisine and attentive service creates a memorable dining experience that keeps guests coming back for more.
Local Links
East Markham has easy bus links to Retford and Newark. It is only 4 minuites drive from Tuxford, 13 minutes from Retford and 20 minutes from Newark.
East Markham Primary and Nursery School retains it’s OFSTED Good rating. Children can also follow on into Tuxford Academy rated Good and Outstanding in the last two years.






